長岡市要町3丁目1番21号(住居表示) 要町3丁目売工場・店舗・事務所 物件詳細
2026/04/14掲載
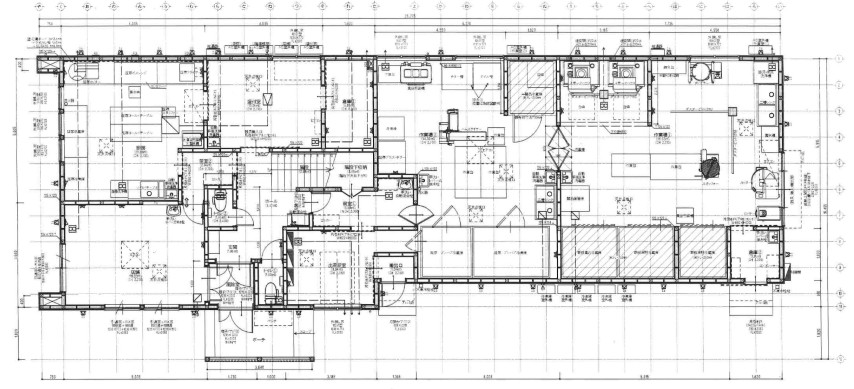
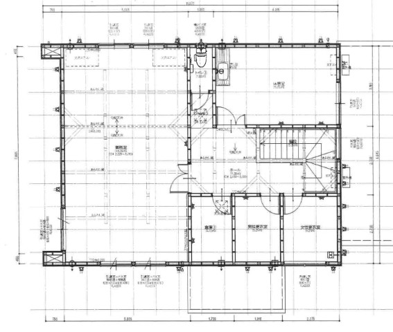
令和5年築の築浅居抜き物件です♪食品加工工場・販売店舗に最適です。2階は事務所兼休憩所となります。設備も別途お渡し可能ですので詳細はご相談下さい。内見ご希望の際は事前にご連絡下さい。
| 売工場・店舗・事務所 | 要町3丁目売工場・店舗・事務所 | ||
|---|---|---|---|
| 価格 | 110,000,000円(非課税) | 所在地 | 長岡市要町3丁目1番21号(住居表示) |
| 土地面積 | 登記簿:825.37㎡(249.67坪) | 建物面積 | 1F 203.59㎡ 2F 94.45㎡ 合計298.04㎡(90.15坪) |
| 地目 | 宅地 | 間取り | |
| 間口 | 26.6m | 築年数 | 令和5年3月新築 |
| 奥行 | 33.29m | 構造 | 木造合金メッキ鋼板葺2階建 |
| 都市計画 | 市街化区域 | 用途地域 | 準工業地域 |
| 建ぺい率 | 60% | 容積率 | 200% |
| 前面道路 | 22m県道(消雪有) | 引渡し | 令和8年10月予定(現在所有者使用中) |
| 交通 | 仲介手数料 | 3,696,000円(税込) | |
| 学校区 | 宮内小・宮内中 | 取引形態 | 仲介 |
| 設備 | 公営水道/公共下水/LPガス/宅内消雪井戸有/敷地内駐車場10台分/ | ||
| 備考 | 価格内訳:土地3,500万円/建物7,500万円(非課税)/契約不適合免責/図面と現況異なる場合は現況優先/建物内部動産は売主負担で撤去します。残置ご希望の際はご相談下さい。/令和8年固都税年額626,311円 | ||
| アクセス | |||

















































